Te koop

Nieuwbouwproject
Pervijze

Ref. 4075189

Verkaveling De Gravestraat

De Gravestraat 0, 8600 Pervijze

Hedendaagse gezinswoningen in het landelijke Pervijze

Vanaf € 319.000

Bezoek dit pand virtueel

Nieuwbouw

Gvkr, Vv

Over dit project

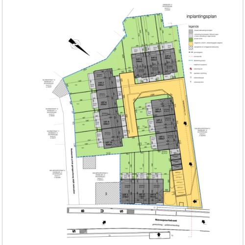
De verkaveling aan de Nieuwpoortstraat in Pervijze bestaat uit 13 Energiezuinige (E-30) gezinswoningen met vlotte verbinding naar Diksmuide, Veurne en Nieuwpoort.

Bouwbedrijf Pieter Blomme heeft reeds meer dan 30 jaar ervaring in het bouwen van woningbouw in West-Vlaanderen en is uitgegroeid tot een dynamisch bedrijf waarbij de klanten centraal staan. 
Eerlijkheidprijs en kwaliteit liggen bij hen hoog in het vaandel.
Voor alle woningen met verkoop op plan werken ze onder de Wet Breyne en met een voltooiingswaarborg.

In deze verkaveling heeft u de keuze uit een halfopen of gesloten gezinswoning in landelijke stijl.
De loten A1-2-3 en de loten A7-8-9-10 bestaan uit één bouwlaag en dak en zijn voorzien van garage en 4 slaapkamers.
De loten A4-5-6 en de loten B1-2-3 bestaan uit twee bouwlagen en dak en zijn voorzien van garage en 3 of 4 slaapkamers. Hier kan desgewenst mits meerkost een vaste trap naar de zolder worden voorzien voor het inrichten van extra kamers.

De woningen worden afgewerkt conform het lastenboek, u heeft als koper veel inspraak bij afwerking.

Vraag meer informatie of maak een afspraak om de plannen te ontdekken bij ons op kantoor!
Vraag ook uw bezoek aan de modelwoning!
 
  • Print

Brent helpt je graag verder!

Brent Deschepper

  • 0499 91 96 21
  • 058 24 00 15



EPC referentie
EPC gemene delen kWh/m²
EPC label gemene delen
EPC certificaat gemene delen
E Peil 30
Zeezicht
Zongericht
Bouwtype
Algemene staat
Gemeubeld
Niet-Geïndexeerd. K.I.
Geïndexeerd K.I.
Onroerende voorheffing
Syndickosten

Diepte pand
Breedte pand
Diepte grond
Breedte grond
Bouwjaar
Renovatiejaar
Keuringsattest elektriciteit
Keuringsattest elektriciteit conform
Type asbest
Inventaris
Renovatieverplichting

Stedebouwkundige bestemming
Dagvaarding
Bouwvergunning
Verkavelingsvergunning
Recht van voorkoop
As-built attest
Beschermd erfgoed
Geïnventariseerd erfgoed
Overstromingsgevoeligheid Niet overstromingsgevoelig
Afgebakende zone Niet van toepassing
G-score
P-score

De kaart wordt ingeladen

Wooneenheden

Ref. Type Verdieping Nr. Slpk. App.
opp.
Terras
opp.
Totale
opp.
Prijs Downloads Status
4075206 huis 0 - 4 - - 169 € 319.000 te koop
4075208 huis 0 - 4 - - 189 € 319.000 te koop
4075212 huis 0 - 4 - - 235 € 322.500 te koop
4075210 huis 0 - 3 - - 225 € 329.000 te koop
Ref.: 4075206
Type: huis
Verdieping: 0
Nr.: -
Slpk.: 4
App. opp.: -
Terras opp.: -
Totale opp.: 169
Prijs: € 319.000
Ref.: 4075208
Type: huis
Verdieping: 0
Nr.: -
Slpk.: 4
App. opp.: -
Terras opp.: -
Totale opp.: 189
Prijs: € 319.000
Ref.: 4075212
Type: huis
Verdieping: 0
Nr.: -
Slpk.: 4
App. opp.: -
Terras opp.: -
Totale opp.: 235
Prijs: € 322.500
Ref.: 4075210
Type: huis
Verdieping: 0
Nr.: -
Slpk.: 3
App. opp.: -
Terras opp.: -
Totale opp.: 225
Prijs: € 329.000

Foto's Project te koop Pervijze, ref. 4075189

Nieuwbouw te koop Pervijze - Caenen 4075189 - 3746001023000101739
Nieuwbouw te koop Pervijze - Caenen 4075189 - 3746001023000101740
Nieuwbouw te koop Pervijze - Caenen 4075189 - 3746001023000101741
Nieuwbouw te koop Pervijze - Caenen 4075189 - 3746001023000101742
Nieuwbouw te koop Pervijze - Caenen 4075189 - 3746001023000101743
Nieuwbouw te koop Pervijze - Caenen 4075189 - 3746001023000101744
Nieuwbouw te koop Pervijze - Caenen 4075189 - 3746001023000101745
Nieuwbouw te koop Pervijze - Caenen 4075189 - 3746001023000101746
Nieuwbouw te koop Pervijze - Caenen 4075189 - 3746001023000081187

te koop

Gelijkaardige panden

Recent bekeken

Als eerste op de hoogte van een huis
of appartement dat bij je past?

Niet meteen gevonden wat je zocht? Schrijf je in op een pandenalert
en ontvang nieuwe panden in je mailbox.

Schrijf je in